£1,925 pcm
Ref. Number: 2648247
3 Bedrooms
1 Bathrooms
1 Receptions
Property Summary
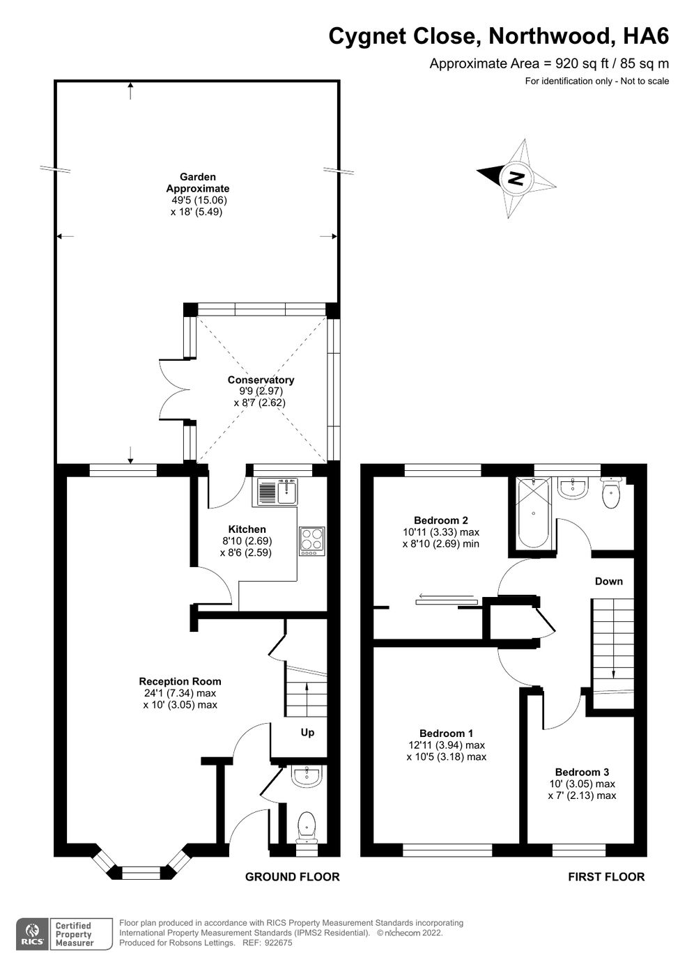
An attractive neo Georgian three bedroom terraced property with well-maintained gardens to the front and rear and a garage in a nearby block the property is set in a well-regarded location conveniently positioned for Northwood town centre with its shops, amenities and Metropolitan Line station with access to Baker Street and the City. The property has been fully redecorated and new flooring has been fitted throughout.
Property Features
- ENTRANCE HALL
- GROUND FLOOR W/C
- LIVING ROOM
- KITCHEN
- CONSERVATORY
- THREE BEDROOMS
- FAMILY BATHROOM
- FRONT GARDEN
- REAR GARDEN
- GARAGE IN NEARBY BLOCK
Map View
Street View
Map View
Street View
Full Details
An attractive neo Georgian three bedroom terraced property with well-maintained gardens to the front and rear and a garage in a nearby block the property is set in a well-regarded location conveniently positioned for Northwood town centre with its shops, amenities and Metropolitan Line station with access to Baker Street and the City. The property has been fully redecorated and new flooring has been fitted throughout.











