Property Summary
• PLANNING REFERENCE NO. 25/0265/FUL
An opportunity to acquire a development site in a suburban street in Chorleywood.
BOUNDARIES & FENCING POSITIONS
We have not undertaken a detailed survey of any of the boundaries. Interested parties are advised to make their own enquiries via their own representatives.
CONTAMINATION & SOIL SURVEY
We have not carried out a land contamination survey. Interested parties should make their own enquiries. We understand that the site is within Flood Zone 1(low probability of flooding).
HEALTH & SAFETY
Whilst undertaking inspection, we would ask you to be as vigilant as possible for your own safety. Any site inspections, hard hats must be worn.
Full Details
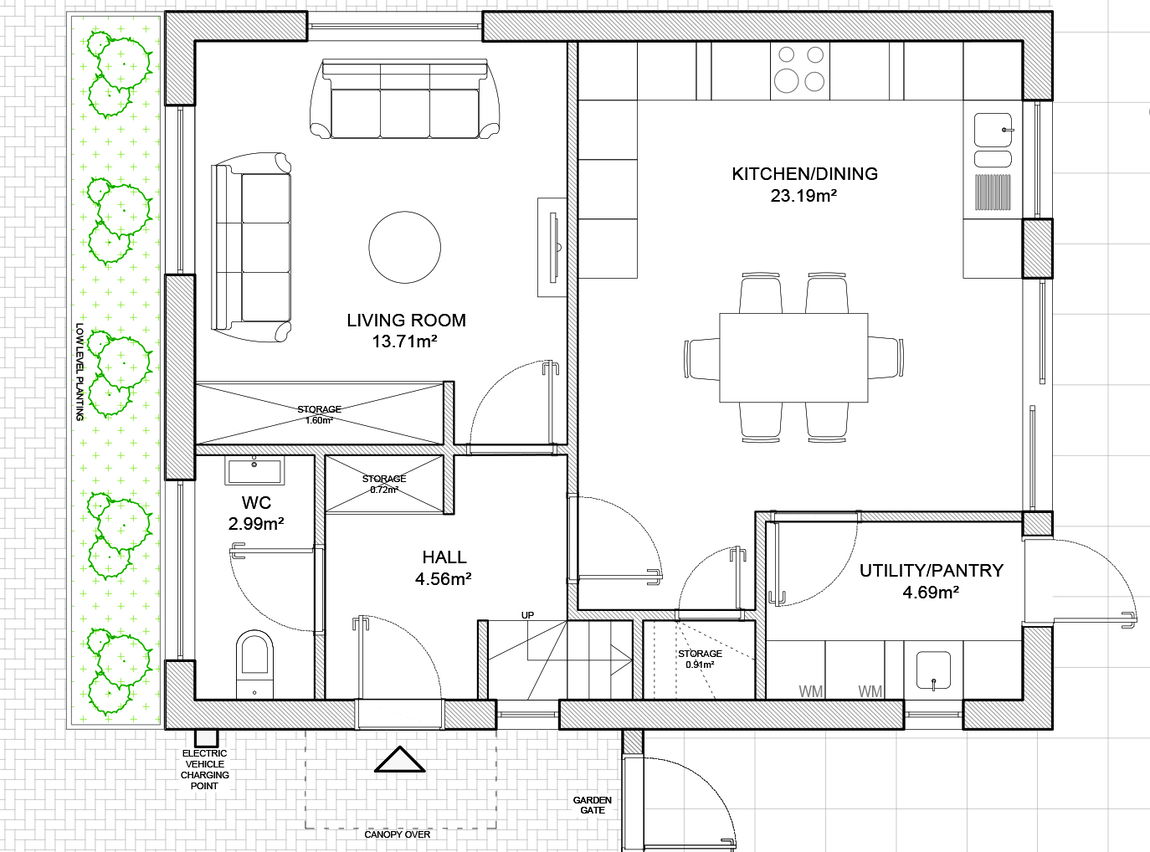
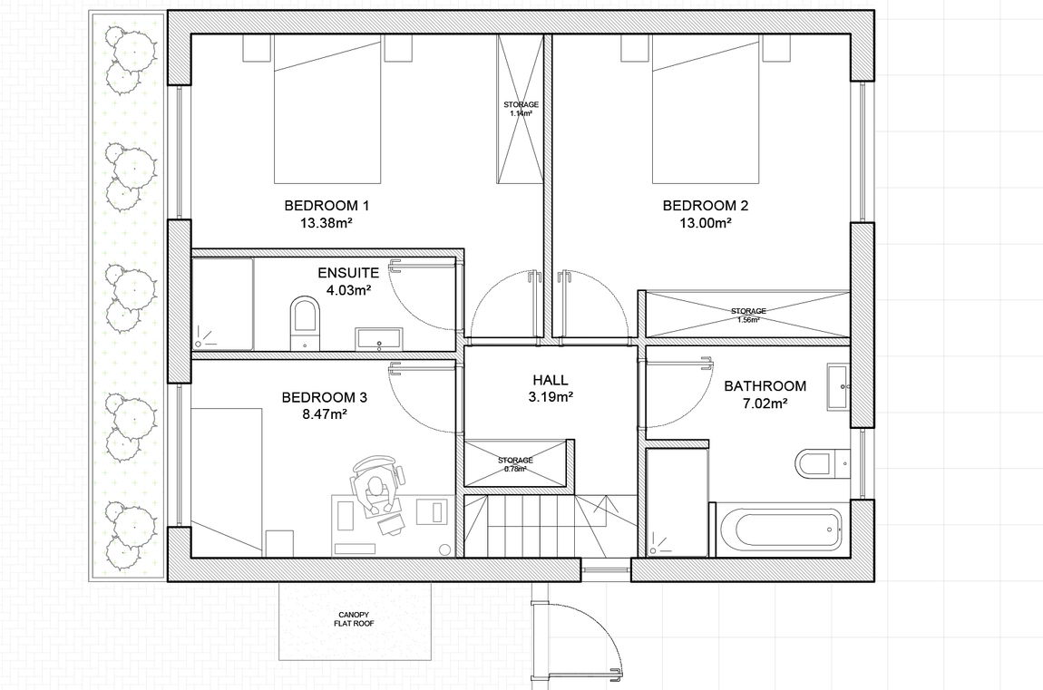
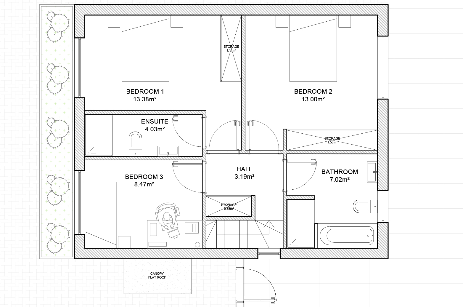
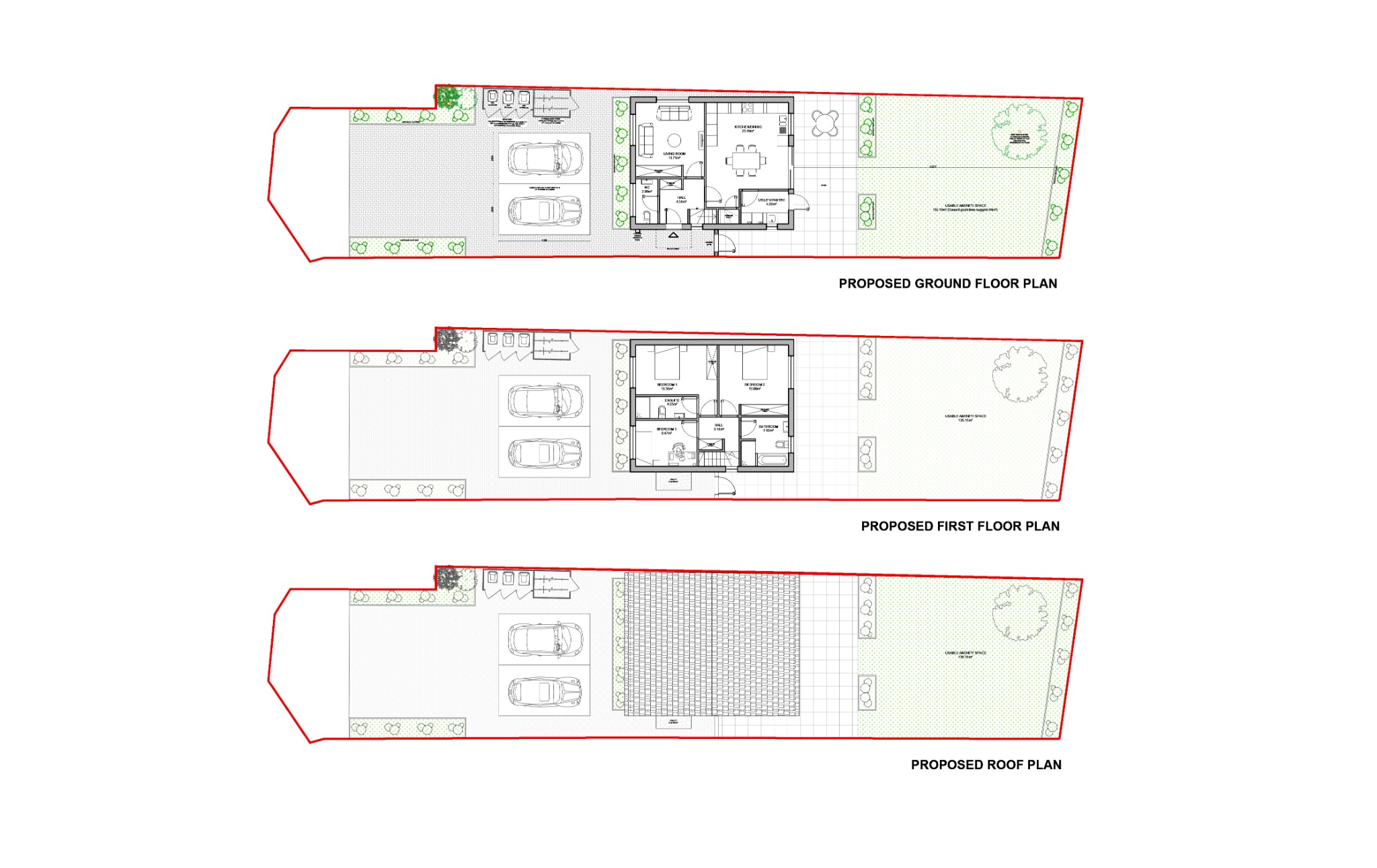
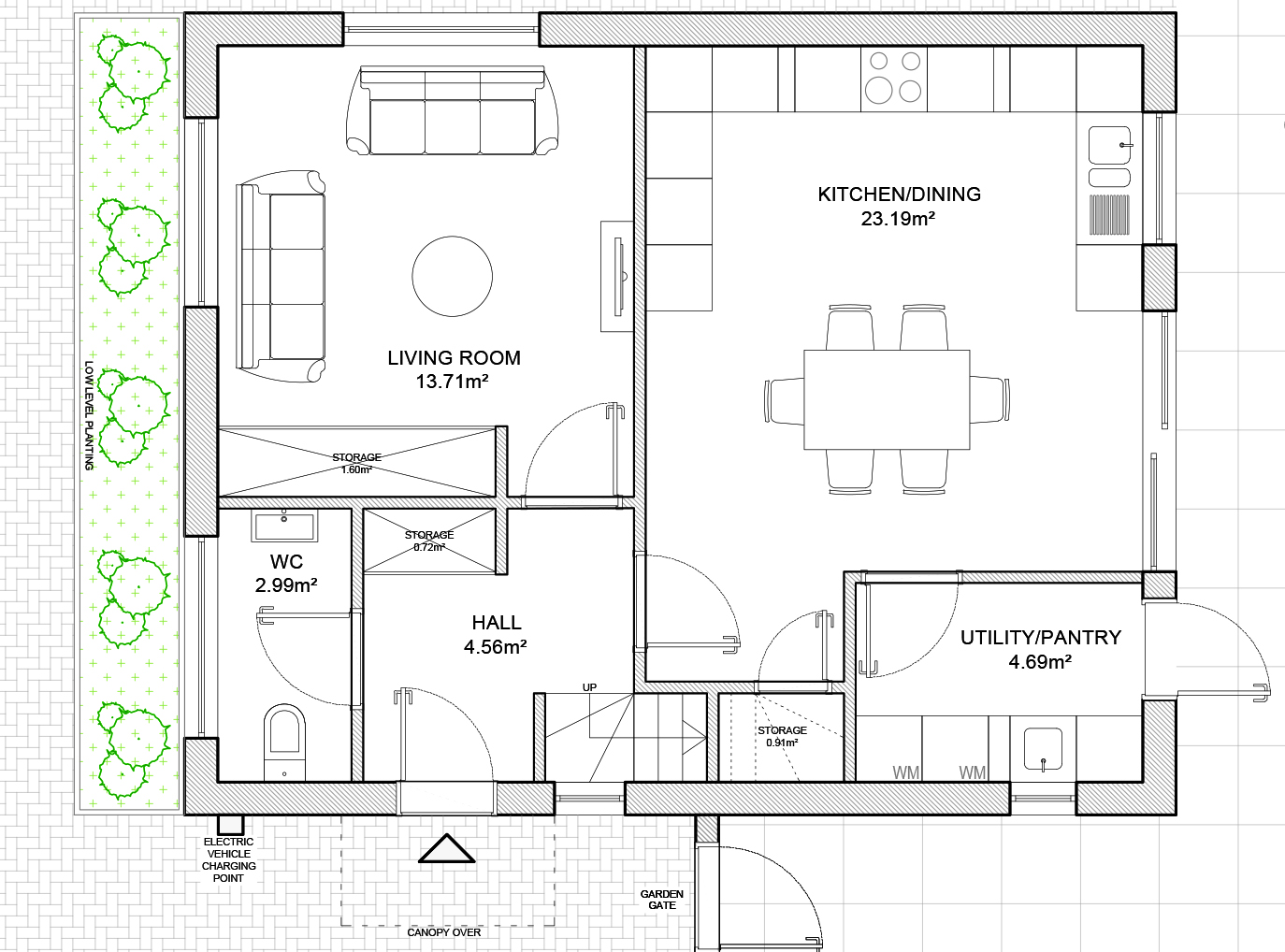
• PLANNING GRANTED FOR 3 BED 2 BATH DETACHED HOUSE at 1,387.04sqft (128.86sqm)
• PLANNING REFERENCE NO. 25/0265/FUL
An opportunity to acquire a development site in a suburban street in Chorleywood.
BOUNDARIES & FENCING POSITIONS
We have not undertaken a detailed survey of any of the boundaries. Interested parties are advised to make their own enquiries via their own representatives.
CONTAMINATION & SOIL SURVEY
We have not carried out a land contamination survey. Interested parties should make their own enquiries. We understand that the site is within Flood Zone 1(low probability of flooding).
HEALTH & SAFETY
Whilst undertaking inspection, we would ask you to be as vigilant as possible for your own safety. Any site inspections, hard hats must be worn.
CIL, AFFORDABLE HOUSING CONTRIBUTION & s106
OBLIGATIONS - Any purchaser who constructs properties, in line with the planning application, will have an obligation to pay the charges imposed by way of a CIL. Three Rivers District Council Affordable Housing Contribution differs from other local authorities. We advise that one must make their own enquiries via their consultants.
DISCLAIMER
Please note: the images are for illustrative purposes only and are not to scale. The plans are for the proposed scheme,
Therefore, the architect’s drawings accuracy cannot be guaranteed or warranted, are not to scale and are indicative only. Therefore, we would advise interested parties to obtain verification from their own advisers. The plans should be used for general guidance only and do not constitute, in whole or in part, an offer or contract. Any intending purchaser should satisfy themselves by inspection, searches, enquiries and full survey as to the correctness of each statement. Any areas, measurements or distances quoted are approximate and should not be used to value the property. The plot measurement and Ordnance Survey extract have been sourced from Promap and the accuracy cannot be guaranteed and are not to scale. Interested parties should make their own enquiries of the same. It is incumbent on any potential purchaser
to satisfy themselves as to the suitability of the site for their own purposes.
Tenure: Freehold
Local Authority: Three Rivers District Council
EPC: tbc









